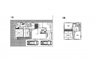
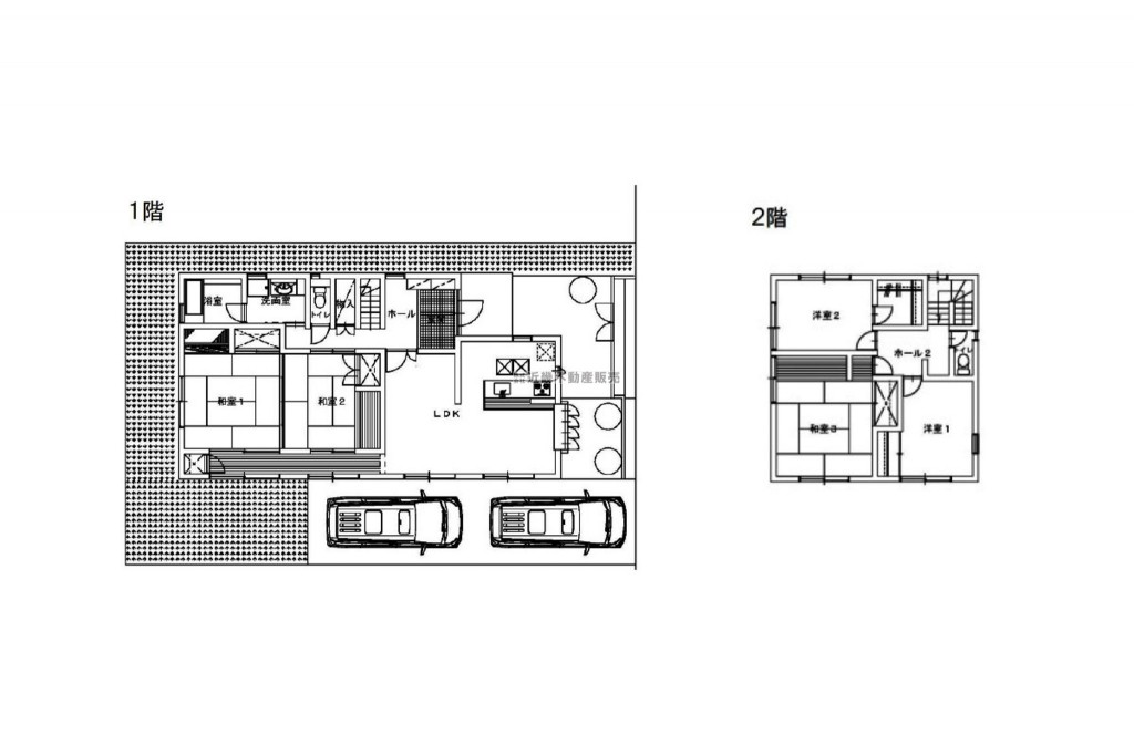
ミサワホームのお家! 5LDK! 縦列2台駐車可能! 令和7年10月リフォーム済!
つつじが丘から物件が出ました。ミサワホームのお家で令和7年10月にリフォーム済です。お気軽にお問い合わせくださいませ! ※リフォーム内容→キッチン・トイレ(1階と2階)・浴室・洗面化粧台・畳表替え・襖と障子張替・壁と天井のクロス張替
TTJ-2026 中古住宅 名張市 つつじが丘南5番町 | 三重県名張市・伊賀市の不動産情報|株式会社近畿不動産販売
ミサワホームのお家! 5LDK! 縦列2台駐車可能! 令和7年10月リフォーム済!
つつじが丘から物件が出ました。ミサワホームのお家で令和7年10月にリフォーム済です。お気軽にお問い合わせくださいませ! ※リフォーム内容→キッチン・トイレ(1階と2階)・浴室・洗面化粧台・畳表替え・襖と障子張替・壁と天井のクロス張替
|
1280万円 5LDK |
| 物件番号 | TTJ-2026 | ||
|---|---|---|---|
| 交通 | 近鉄大阪線 名張駅 バス 18分 南5番町停 徒歩4分 | ||
| 所在地 | 三重県名張市つつじが丘南5番町 |
||
| 建物面積 | 144.08m²(43.58坪) | 土地面積 | 216.30m²(65.43坪) |
|---|---|---|---|
| 建物構造 | 木造 地上2階 | 築年月 | 平成6年7月 |
| 都市計画 | 非線引区域 | 用途地域 | 第一種中高層住居専用 |
| 設備・条件 | 集中プロパンガス 公営水道 公共下水 中部電力 | ||
| 取引態様 | 媒介 | ||
| 備考 | 設備詳細/システムキッチン・カウンターキッチン・シャワー付洗面化粧台・温水洗浄便座・トイレ2カ所・全居室収納・二間続きの和室・縁側等 | ||
| 更新日 | 2025年11月7日(金) | ||
| 次回更新日 | 2025年11月8日(土) | ||